21365
1 van 13
€5.857.000
Benitachell
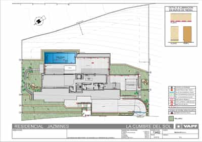
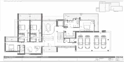
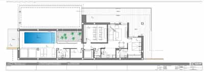
Villa Marblau staat op een bevoorrechte locatie binnen het residentiële complex van Jazmines, per definitie luxe en privacy. Een architecturaal moderne bouw met duidelijke lijnen en edele materialen, een ervaring waarbij design overloopt in het mediterrane landschap en zorgt voor een gedistingeerde en serene manier van leven. De ingang tot de woning is op de bovenverdieping, waar er buiten ook een grote overdekte parkeerplaats is en een gesloten garage met plaats voor verschillende auto's. Op deze verdieping komt u via de hall in de zitruimtes en de rest van de woning is te bereiken met de lift en de trap, wat zorgt voor een gemakkelijke en functionele doorgang tussen alle niveaus. Er zijn drie verdiepingen in de woning met in totaal 5 slaapkamers en 9 badkamers. Op de hoofdverdieping zijn een ruim salon en eetkamer met een open design keuken met kookeiland, afgewerkt met notenhout en antraciet. Op dit niveau bevindt zich ook de hoofdsuite met dressing, eigen badkamer en rechtstreekse toegang tot het terras. Op de bovenverdieping zijn er drie slaapkamers met en-suite badkamer en privé terrassen, voor het comfort van de gasten. De benedenverdieping is voorzien voor vrije tijd en relax, met een bioscoop en surround sound- systeem, fitnessruimte, overdekt zwembad, sauna en hammam. Er is ook nog een appartement voor gasten, uitgerust met een keuken, salon en slaapkamer met privé badkamer. Villa Marblau is uitgerust met een volledige installatie van de hoogste rang, zoals ventilatie via leidingen met Mitsubishi Electric® technologie, vloerverwarming met Ecodam hybride systeem, domotica voor de controle over de installaties, buitenschrijnwerk met thermische isolatie en zonwerend glas, huishoudapparatuur van merken zoals Miele en Siemens en technische design verlichting van FLOS en Arkoslight. Elke badkamer is een toonbeeld van eigentijdse elegantie, met hangtoiletten, opbouwwastafels, inbouwkranen en grootformaat wandbekleding in warme en verfijnde tinten. Het terras geeft uitzicht op een permanent spektakel: de zee, de Peñón de Ifach en de kust zijn als een levend kunstwerk voor onze ogen. Het lijkt alsof de infinity pool versmelt met de blauwe lucht. Een uitnodiging tot rust en genot van het essentiële.
Voorzieningen

Geïnteresseerd?
Contacteer Myra en stel uw vraag.
Onze uitgelichte eigenschappen
MV-618768
€2.200.000
Benissa
Nieuw gebouwde villa, uitzicht op zee en afwerking van topkwaliteit in Benissa. De toegang tot de weg is vanaf een parkeerpla...
EBB04
€605.000
Calpe
Allure is veel meer dan zomaar een bouwproject; het is een nieuw residentieel concept in Calpe: Allure - Luxury Urban Resort....
22991
€2.146.000
Altea
In Altea ligt tussen de blauwe zee en de groene pijnbomen Blanc-19, een woning met vier verdiepingen en met een design dat be...